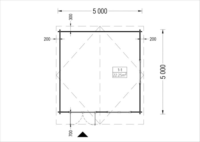
Premium Gartenhaus WIEN, 5×5 m, 25 m²
Das Gartenhaus „WIEN“ ist eine kompakte und gemütliche Holzhütte, die höchste Funktionalität, ein schönes Design und maximalen Komfort bietet. Ob Sie einen Ort zum Entspannen, als Ferienhaus oder für mobiles Arbeiten suchen, diese Hütte könnte genau das sein, was Sie benötigen.
Wählen Sie die Optionen
-
Zurücksetzen
*Wandstärke
*Fußboden
Fußboden - 20 mm Holzdielen, Querstreben und Fußleisten
Holzrahmen Fundament
Holzrahmen-Unterbau ist sehr praktisch, wenn ein Betonfundament nicht infrage kommt
Montageservice
Der Preis für den Montageservice umfasst das Aufstellen der Blockhütte ab Oberkante des Fundaments (Wände, Dachkonstruktion, Fenster, Türen, Schlösser und sonstige Beschläge). Die Verlegung des auf unserer Website angebotenen (oder eines sehr ähnlichen) Dachmaterials kostet 20-25 Euro pro qm.
€ 4195,20 – € 5825,40
inkl. MwSt. Kostenloser versand
Lieferzeit: 8 bis 10 Wochen
Sie haben Fragen zum Artikel? Nutzen Sie unseren Rückrufservice oder das Kontaktformular.
Für alle Häuser bieten wir auch ein Metalldach an, nehmen Sie Kontakt mit uns auf, den Katalog können Sie hier herunterladen.
Für wärmeisolierte Häuser oder andere Wünsche wie PVC-Fenster oder Maßanfertigungen nutzen Sie bitte den Rückrufservice oder den Beratungsbutton.
Beschreibung
Das Gartenhaus „WIEN“ (34 mm – 66 mm) mit den Maßen 5×5 m und einer Fläche von 25 m² bietet verschiedene Highlights:
- Stilvoller Dachüberstand:
- Der stilvolle Dachüberstand ermöglicht es Ihnen, einen schattigen Aufenthaltsbereich im Freien einzurichten. Dies verleiht der Hütte nicht nur eine ästhetische Note, sondern schafft auch einen komfortablen Raum im Freien.
- Große Eingangstüren für bequemen Zugang:
- Die großen Eingangstüren sorgen für einen bequemen Zugang zur Hütte. Dies erleichtert das Betreten und Verlassen des Gebäudes und trägt zur Nutzerfreundlichkeit bei.
- Große Fenster und Türen für viel Tageslicht:
- Die großen Fenster und Türen lassen viel Tageslicht ins Innere und machen die Hütte zu einem gemütlichen und erholsamen Ort. Dies schafft eine angenehme Atmosphäre im Innenraum.
Das Gartenhaus „WIEN“ ist eine kompakte und gemütliche Holzhütte, die höchste Funktionalität, ein schönes Design und maximalen Komfort bietet. Ob Sie einen Ort zum Entspannen, als Ferienhaus oder für mobiles Arbeiten suchen, diese Hütte könnte genau das sein, was Sie benötigen.
Zusätzliche Informationen
| Größe | 5000 × 5000 cm |
|---|---|
|
|
|
|
|
|
|
|
1 |
|
|
|
|
|
|
|
|
|
|
|
, , |
|
|
|
|
|
|
|
|
|
| Außenmaß | |
|
|
|
|
|
|
|
|
|
|
|
|
| Innenmaß | |
|
|
|
|
|
|
| Dachwinkel | |
| Grundform | |
| Herstellergarantie | |
|
|
|
| Fläche |
Sie wünschen einen Rückruf für eine Produktberatung?
Hinterlassen Sie Ihre Telefonnummer und wir rufen Sie an Ihrem Wunschtermin zurück.
Premium Gartenhäuser - Qualität beginnt bei der Auswahl der Materialien
Bei Premium Gartenhaus setzen wir Qualität und Nachhaltigkeit an oberste Stelle. Unsere Premium Gartenhäuser entstehen aus sorgfältig ausgewähltem Kiefer- und Fichtenholz, das aus nachhaltig bewirtschafteten Wäldern stammt. Dieses Holz beeindruckt nicht nur durch seine natürliche Schönheit, sondern auch durch seine außergewöhnliche Langlebigkeit. Es bildet die Basis für erstklassige Holzbauten, die Ihrem Garten zeitlose Eleganz verleihen.
Austauschbare Position der gegenüberliegenden Wände!
Fußboden als optionales Zubehör erhältlich
Kostenlose Doppelverglasung ab 34 mm Wandstärke
Verstärkte Dachkonstruktion für langanhaltende Stabilität:
Erhalten Sie ein Dach, das Beständigkeit verspricht! Unsere verstärkte Dachkonstruktion setzt auf robuste Giebel und Dachsparren (45 mm x 135 mm oder 45 mm x 270 mm), um eine dauerhafte Stabilität zu gewährleisten und Ihr Dach vor möglichen Verformungen zu schützen.
Inklusive Fenster- und Türabdichtungen:
Unsere Gartenhäuser werden standardmäßig mit vormontierten Gummidichtungen für Fenster und Türen geliefert. Dies gewährleistet nicht nur eine effektive Abdichtung gegen Wasser, sondern sorgt auch für eine luftdichte und zugfreie Umgebung im Inneren Ihres Gartenhauses.
Hochwertiges Glas statt Kunststoff!
Bei uns setzen wir konsequent auf Qualitätsglas anstelle von Kunststoff! Alle Fenster und Türen unserer Gartenhäuser sind mit 4 mm dickem Glas ausgestattet. Diese bewusste Entscheidung unterstreicht unsere Hingabe zur Qualität und Ästhetik unserer Produkte
Ähnliche Produkte
Gartenhaus PETRA (34 mm), 3×4 m
Kostenloser versand
Lieferzeit: 8 bis 10 Wochen
Premium Gartenhaus CLAUDIA (44mm) 28m²
Kostenloser versand
Lieferzeit: 8 bis 10 Wochen
Premium Gartenhaus ALAN (28mm), 3x3m, 9m²
Kostenloser versand
Lieferzeit: 8 bis 10 Wochen
Premium Gartenhäuser - Qualität beginnt bei der Auswahl der Materialien
Bei Premium Gartenhaus setzen wir Qualität und Nachhaltigkeit an oberste Stelle. Unsere Premium Gartenhäuser entstehen aus sorgfältig ausgewähltem Kiefer- und Fichtenholz, das aus nachhaltig bewirtschafteten Wäldern stammt. Dieses Holz beeindruckt nicht nur durch seine natürliche Schönheit, sondern auch durch seine außergewöhnliche Langlebigkeit. Es bildet die Basis für erstklassige Holzbauten, die Ihrem Garten zeitlose Eleganz verleihen.
Austauschbare Position der gegenüberliegenden Wände!
Fußboden als optionales Zubehör erhältlich
Kostenlose Doppelverglasung ab 34 mm Wandstärke
Verstärkte Dachkonstruktion für langanhaltende Stabilität:
Erhalten Sie ein Dach, das Beständigkeit verspricht! Unsere verstärkte Dachkonstruktion setzt auf robuste Giebel und Dachsparren (45 mm x 135 mm oder 45 mm x 270 mm), um eine dauerhafte Stabilität zu gewährleisten und Ihr Dach vor möglichen Verformungen zu schützen.
Inklusive Fenster- und Türabdichtungen:
Unsere Gartenhäuser werden standardmäßig mit vormontierten Gummidichtungen für Fenster und Türen geliefert. Dies gewährleistet nicht nur eine effektive Abdichtung gegen Wasser, sondern sorgt auch für eine luftdichte und zugfreie Umgebung im Inneren Ihres Gartenhauses.
Hochwertiges Glas statt Kunststoff!
Bei uns setzen wir konsequent auf Qualitätsglas anstelle von Kunststoff! Alle Fenster und Türen unserer Gartenhäuser sind mit 4 mm dickem Glas ausgestattet. Diese bewusste Entscheidung unterstreicht unsere Hingabe zur Qualität und Ästhetik unserer Produkte
