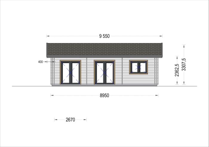
Blockbohlenhaus ANDI (44+44mm), 72m²
Wählen Sie die Optionen
-
*Fußboden
Unsere Gartenhäuser werden standardmäßig ohne Fußboden, jedoch mit der Unterkonstruktion geliefert. Sie können jedoch einen Fußboden optional dazu bestellen.
Fenster & Türen
Standardmäßig sind doppelt verglaste Fenster und Außentüren enthalten. Optional können Sie auch PVC-Fenster bestellen.
Montageservice
Der Preis für den Montageservice umfasst das Aufstellen der Blockhütte ab Oberkante des Fundaments (Wände, Dachkonstruktion, Fenster, Türen, Schlösser und sonstige Beschläge)
€ 24694,80
inkl. 20 % MwSt. Kostenloser versand
Lieferzeit: 12 bis 14 Wochen
Sie haben Fragen zum Artikel? Nutzen Sie unseren Rückrufservice oder das Kontaktformular.
Für alle Häuser bieten wir auch ein Metalldach an, nehmen Sie Kontakt mit uns auf, den Katalog können Sie hier herunterladen.
Für wärmeisolierte Häuser oder andere Wünsche wie PVC-Fenster oder Maßanfertigungen nutzen Sie bitte den Rückrufservice oder den Beratungsbutton.
Beschreibung
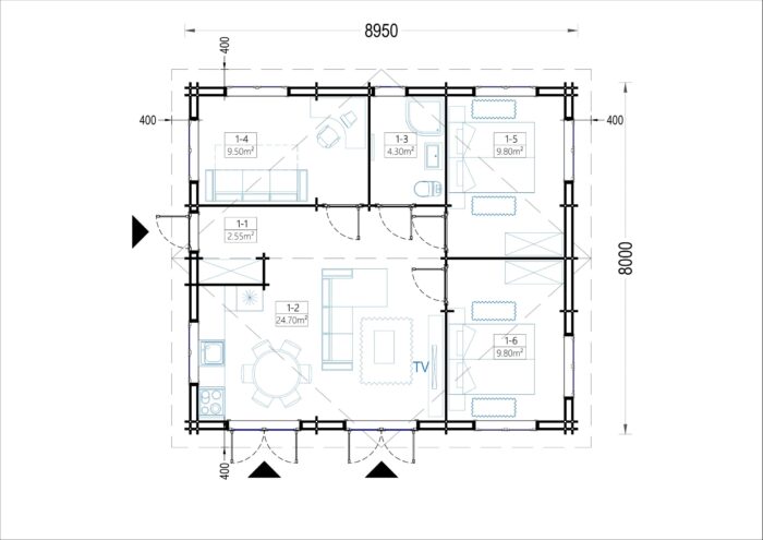
Das Blockbohlenhaus ANDI mit einer doppelten Wandstärke von insgesamt 88 mm und einem Satteldach bietet eine geräumige Wohnfläche von 72 m² und viele bemerkenswerte Merkmale:
- 3 geräumige Schlafzimmer: Das Haus verfügt über drei Schlafzimmer, die Privatsphäre für alle Bewohner und separate Zimmer für Gäste bieten.
- 25 m² großes Wohnzimmer: Das große Wohnzimmer ist mit einem offenen Küchenbereich verbunden und bietet viel Platz für gemeinsame Aktivitäten.
- Helle und gemütliche Innenräume: Zahlreiche große Fenster und Türen sorgen für viel Tageslicht und schaffen eine einladende Atmosphäre im Inneren.
- Zwei direkte Doppeltür-Eingänge zum Hof: Diese Eingänge ermöglichen einen direkten Zugang zum Garten oder Hof.
- Ein Badezimmer für Wohnkomfort: Das Badezimmer bietet zusätzlichen Komfort für die Bewohner.
Das Blockbohlenhaus ANDI im Chalet-Stil eignet sich hervorragend für eine 3-4-köpfige Familie oder für dauerhaftes Wohnen für ein Einzelperson oder ein Paar. Es kann als Hauptwohnsitz oder Zweitwohnsitz genutzt werden und bietet eine natürlichere Lebensweise in einer friedlichen Umgebung. Dieses Haus könnte die Erfüllung Ihres Traums von einem naturnahen Lebensstil sein.
Zusätzliche Informationen
| Größe | 6600 × 3000 × 2490 cm |
|---|
Sie wünschen einen Rückruf für eine Produktberatung?
Hinterlassen Sie Ihre Telefonnummer und wir rufen Sie an Ihrem Wunschtermin zurück.
Premium Gartenhäuser - Qualität beginnt bei der Auswahl der Materialien
Bei Premium Gartenhaus setzen wir Qualität und Nachhaltigkeit an oberste Stelle. Unsere Premium Gartenhäuser entstehen aus sorgfältig ausgewähltem Kiefer- und Fichtenholz, das aus nachhaltig bewirtschafteten Wäldern stammt. Dieses Holz beeindruckt nicht nur durch seine natürliche Schönheit, sondern auch durch seine außergewöhnliche Langlebigkeit. Es bildet die Basis für erstklassige Holzbauten, die Ihrem Garten zeitlose Eleganz verleihen.
Austauschbare Position der gegenüberliegenden Wände!
Fußboden als optionales Zubehör erhältlich
Kostenlose Doppelverglasung ab 34 mm Wandstärke
Verstärkte Dachkonstruktion für langanhaltende Stabilität:
Erhalten Sie ein Dach, das Beständigkeit verspricht! Unsere verstärkte Dachkonstruktion setzt auf robuste Giebel und Dachsparren (45 mm x 135 mm oder 45 mm x 270 mm), um eine dauerhafte Stabilität zu gewährleisten und Ihr Dach vor möglichen Verformungen zu schützen.
Inklusive Fenster- und Türabdichtungen:
Unsere Gartenhäuser werden standardmäßig mit vormontierten Gummidichtungen für Fenster und Türen geliefert. Dies gewährleistet nicht nur eine effektive Abdichtung gegen Wasser, sondern sorgt auch für eine luftdichte und zugfreie Umgebung im Inneren Ihres Gartenhauses.
Hochwertiges Glas statt Kunststoff!
Bei uns setzen wir konsequent auf Qualitätsglas anstelle von Kunststoff! Alle Fenster und Türen unserer Gartenhäuser sind mit 4 mm dickem Glas ausgestattet. Diese bewusste Entscheidung unterstreicht unsere Hingabe zur Qualität und Ästhetik unserer Produkte
Ähnliche Produkte
Premium Blockbohlenhaus Innsbruck (44 mm) 36 m² mit 14 m² Schlafboden
Kostenloser versand
Lieferzeit: 12 bis 14 Wochen
Premium Gartenhäuser - Qualität beginnt bei der Auswahl der Materialien
Bei Premium Gartenhaus setzen wir Qualität und Nachhaltigkeit an oberste Stelle. Unsere Premium Gartenhäuser entstehen aus sorgfältig ausgewähltem Kiefer- und Fichtenholz, das aus nachhaltig bewirtschafteten Wäldern stammt. Dieses Holz beeindruckt nicht nur durch seine natürliche Schönheit, sondern auch durch seine außergewöhnliche Langlebigkeit. Es bildet die Basis für erstklassige Holzbauten, die Ihrem Garten zeitlose Eleganz verleihen.
Austauschbare Position der gegenüberliegenden Wände!
Fußboden als optionales Zubehör erhältlich
Kostenlose Doppelverglasung ab 34 mm Wandstärke
Verstärkte Dachkonstruktion für langanhaltende Stabilität:
Erhalten Sie ein Dach, das Beständigkeit verspricht! Unsere verstärkte Dachkonstruktion setzt auf robuste Giebel und Dachsparren (45 mm x 135 mm oder 45 mm x 270 mm), um eine dauerhafte Stabilität zu gewährleisten und Ihr Dach vor möglichen Verformungen zu schützen.
Inklusive Fenster- und Türabdichtungen:
Unsere Gartenhäuser werden standardmäßig mit vormontierten Gummidichtungen für Fenster und Türen geliefert. Dies gewährleistet nicht nur eine effektive Abdichtung gegen Wasser, sondern sorgt auch für eine luftdichte und zugfreie Umgebung im Inneren Ihres Gartenhauses.
Hochwertiges Glas statt Kunststoff!
Bei uns setzen wir konsequent auf Qualitätsglas anstelle von Kunststoff! Alle Fenster und Türen unserer Gartenhäuser sind mit 4 mm dickem Glas ausgestattet. Diese bewusste Entscheidung unterstreicht unsere Hingabe zur Qualität und Ästhetik unserer Produkte
